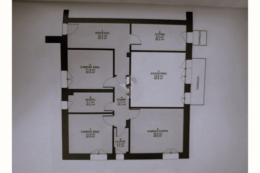
In vendita ampio quadrilocale al quarto piano di una palazzina dotata di ascensore.
L’appartamento si apre su un luminoso ingresso che conduce alla zona giorno, composta da soggiorno e cucina separata, entrambi con accesso ai due terrazzi.
La zona notte, ben distinta dalla zona giorno, include due camere matrimoniali, una camera singola, un bagno finestrato con vasca e un pratico ripostiglio/lavanderia.
Completano la proprietà un box al piano terra e posti auto liberi all’interno del giardino condominiale recintato.
L’immobile ha beneficiato di un parziale riammodernamento: circa cinque anni fa sono stati rifatti l’impianto elettrico e i termosifoni. I serramenti interni sono in doppio vetrocamera, mentre le tapparelle esterne sono in PVC.
Il riscaldamento è semi-autonomo, garantendo comfort e controllo dei consumi.
Caratteristiche specifiche
- 114 m² commerciali, 112 m² calpestabili
- 5 locali
- 1 bagno
- Terrazzo
- Box singolo compreso nel prezzo
- Posto auto scoperto
- Buono stato
- Costruito nel 1970
- Riscaldamento autonomo: Gas naturale
- Classe energetica (Legge 90 del 2013, legislazione vigente): G (IPE non indicato)













