
Un’opportunità unica per chi desidera uno stile di vita moderno e confortevole. Questo appartamento di nuova costruzione, classificato in classe energetica A4, offre un ambiente spazioso e funzionale, perfetto per soddisfare le tue esigenze abitative.
Caratteristiche Principali:
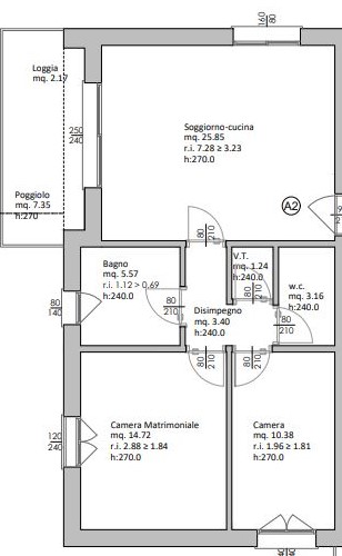
Spazio Abitativo: Ampia cucina-soggiorno con accesso a una loggia e un poggiolo, perfetti per godere di momenti di relax all’aria aperta.
Camere: Due camere da letto ben illuminate e confortevoli.
Bagno: Un bagno completo con piatto doccia e predisposizione per lavatrice ed un altro bagno di servizio.
Dotazioni Tecnologiche:
Energia Solare: Dotato di pannelli solari fotovoltaici da 3 kW per un consumo energetico sostenibile.
Produzione di Acqua Calda: Utilizzo di pompa di calore aria-acqua con fluido R410A, con priorità per l’acqua calda sanitaria.
Riscaldamento: Comfort garantito grazie ai pannelli radianti a pavimento e allo scalda salviette elettrico nei bagni.
Predisposizione Aria Condizionata: Sistema Split suddiviso per zona giorno e notte, per il massimo comfort climatico.
Serramenti Esterni: Avvolgibili in alluminio coibentato con apertura elettrica, portoncino d’ingresso blindato e insonorizzato, finestre in PVC bianco stabilizzato per un’efficienza energetica ottimale.
DISPONIBILE DA GIUGNO 2024.




Le immagini fornite in questo annuncio sono rappresentazioni grafiche realistiche, conosciute come rendering, e hanno il solo scopo di illustrare il potenziale dell’appartamento.
