Investimento: Palazzina con 7 Appartamenti da Ristrutturare a Bassano del grappa
perizia del valore catastale di €700.000
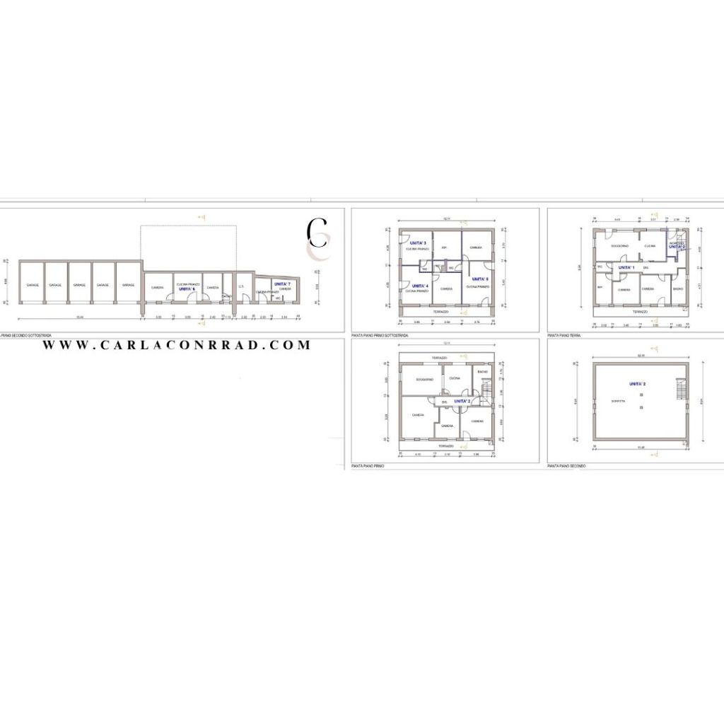
La palazzina da ristrutturare è un affascinante edificio articolato su quattro piani, con sette appartamenti e spazi accessori che offrono molte opportunità di sviluppo. Ecco una descrizione dettagliata di ogni piano:
Secondo Piano Sottostrada: A questo livello, ci sono due appartamenti. Uno di essi è costituito da due camere da letto, un ampio open space che comprende cucina e salotto, e un miniappartamento indipendente. Questa varietà di spazi offre versatilità nelle opzioni di abitazione.
Primo Piano Sottostrada: Il primo piano sottostrada ospita tre mini appartamenti, di cui due vantano una terrazza privata. Ogni mini appartamento comprende un open space con cucina e salotto, una camera da letto e un bagno. Le terrazze aggiungono un elemento di lusso e la possibilità di godere di spazi all’aperto.
Piano Terra: Il piano terra è occupato da un ampio appartamento caratterizzato da cucina, soggiorno, camera matrimoniale, camera singola, due bagni, un ripostiglio e un terrazzo. Gli spazi generosi di questa unità offrono una soluzione abitativa confortevole.
Primo Piano: Il primo piano è dedicato a un appartamento con tre camere da letto, cucina, soggiorno e bagno, oltre a due terrazzi che offrono ulteriori possibilità di relax e intrattenimento.
Piano Secondo: Il piano secondo consiste in una soffitta con un’altezza di 3,15 metri, rappresentando uno spazio che può essere trasformato in un ambiente unico, come un loft o uno studio, aggiungendo un tocco di creatività all’edificio.
Completano l’immobile 2.000 m/q di terreno, cinque garage che si trovano al secondo piano sottostrada.
Grazie alla presenza di spazi abitativi ben progettati e accessori come garage e magazzini, questa proprietà offre un potenziale straordinario per svariate finalità, con la possibilità di adattarsi alle esigenze più diverse. I generosi metri catastali consentono la realizzazione di progetti ambiziosi, tra cui la trasformazione in un hotel o in altre strutture, offrendo così ampie opportunità di personalizzazione e sfruttamento del suo valore immobiliare. €350.000
Caratteristiche immobile
- Piani: 5
- Ascensore: no
- Box: 5
- MQ Box: 17
- Posti auto:7 (scoperto)
- Terrazzo: Sì
- Giardino: comune
- MQ Giardino:2.000
- Condizioni: da ristrutturare
- Arredamento: non arredato
- Anno di costruzione:1960
- Stato al rogito: libero
.





