Villetta a schiera di generose dimensioni, 260 mq calpestabili, così composta:
- Piano terra: ingresso, angolo cottura, soggiorno con sala da pranzo e bagno di servizio.
- Primo piano: zona notte con due camere da letto, una stanza aggiuntiva ad uso guardaroba, due bagni, veranda e terrazza.
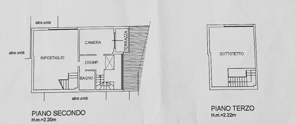
- Secondo piano: camera con accesso diretto alla terrazza, bagno e sottotetto abitabile sviluppato su due livelli (con soppalco).
- Piano interrato: ampia taverna con cantina, lavanderia, locale caldaia e garage.
L’immobile è dotato di impianto fotovoltaico da 10 kW con tre batterie di accumulo, caldaia ibrida di ultima generazione, climatizzatori e colonnina per la ricarica dell’auto elettrica.














Caratteristiche
- StatoBuono – abitabile
- Superficie: 260 mq
- Piani: 3
- Bagni: 3
- Box privato
- Balcone
- Giardino privato: 52 mq
- Arredato
- Aria condizionata
CLASSE ENERGETICA A1
