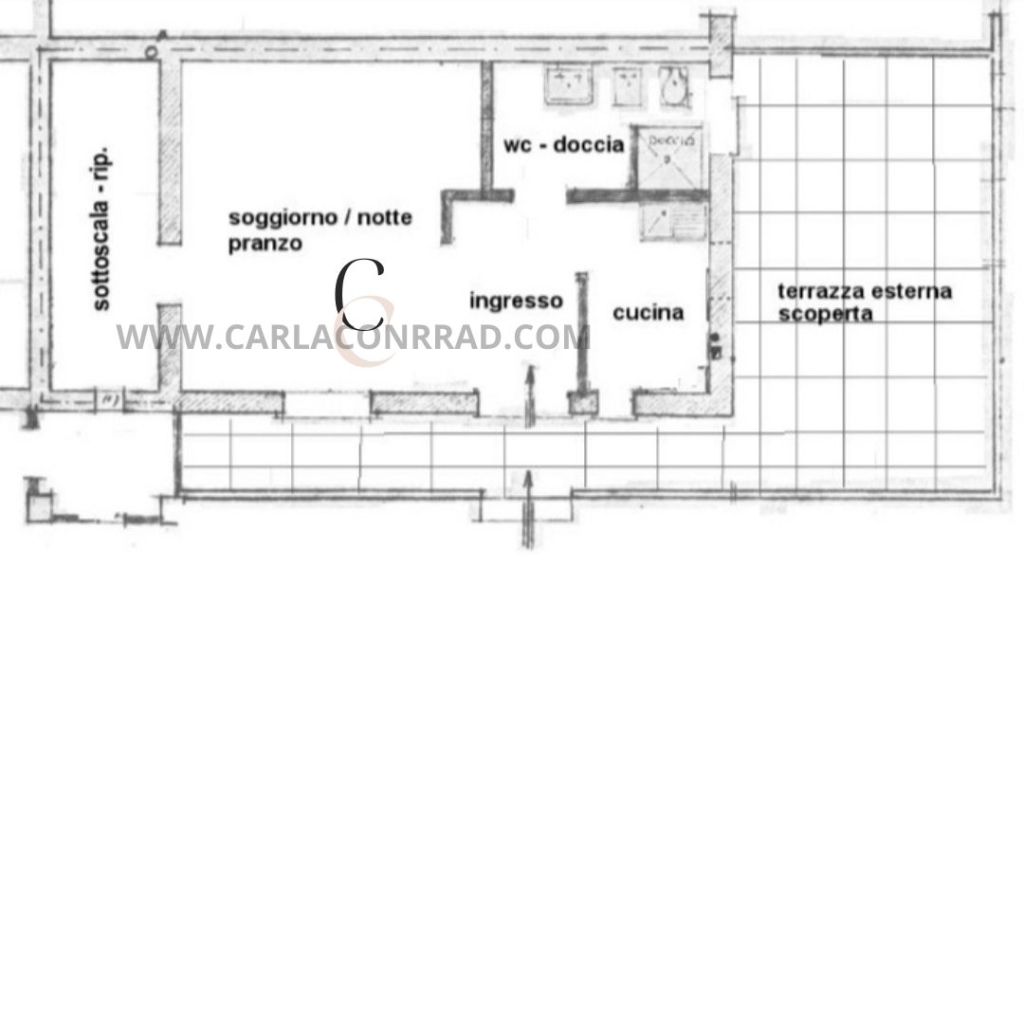
Monolocale con terrazza
Situato a breve distanza dal centro di Treviso, presentiamo un monolocale al piano terra con una spaziosa terrazza esterna, attualmente in fase di ultimazione della ristrutturazione. La proprietà include un ingresso, un’area soggiorno/notte, cucina, bagno e un ripostiglio nel sottoscala. I lavori di impianto elettrico e riscaldamento sono già stati completati, così come l’installazione di nuovi infissi in PVC. Completa l’offerta un comodo posto auto privato.
€ 100.000


CARATTERISTICHE
- Superficie : 46 mq commerciali – 39 mq calpestabili
- Locali:1
- Bagno: 1
- Terrazza: si
- Climatizzatore: si
- Ristrutturato
- Posto auto: 1 (scoperto)
- Giardino: comune
- Spese condominiali: 15/mese
- Classe energetica: E
