Splendida villa unifamiliare su due piani, ideale per essere suddivisa in due unità abitative indipendenti. La proprietà offre ampi spazi interni e una posizione privilegiata, con un giardino di circa 1.000 mq, portico e tre garage.
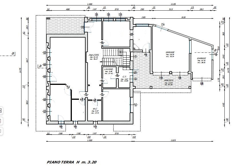
Piano terra:
Composto da un ingresso, cucina, salotto, due camere da letto, due bagni, ripostiglio, lavanderia e centrale termica.
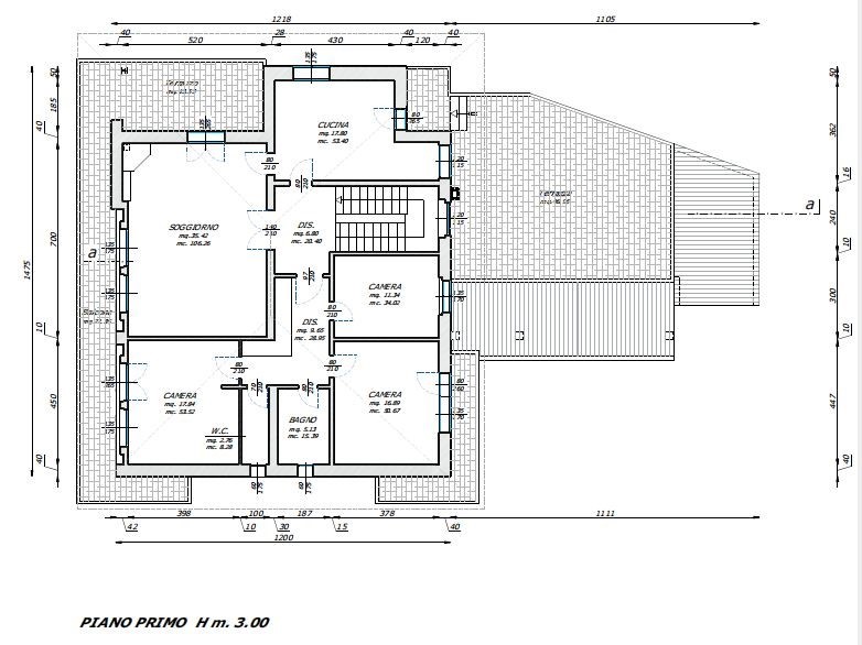
Primo piano:
Include una cucina con terrazzino, un soggiorno luminoso con terrazzo a L (comunicante con una delle camere), tre camere da letto, un bagno e un ulteriore terrazzo che si collega a un’altra delle camere. Terrazza di 46 mq.
La casa necessita di ristrutturazione, ma offre un grande potenziale per essere personalizzata secondo le proprie esigenze.
Caratteristiche di base
- 300 M² commerciali
- 296 M² calpestabili
- 12 locali
- 3 bagni
- Terrazza
- Balcone
- Seconda mano/Da ristrutturare
- Anno di costruzione: 1968
- Nord, Sud, Est, Ovest
- Appezzamento 1.000 M²
- Box
Attestato di prestazione energetica
Consumo: G
Installazione
- Riscaldamento: Autonomo
- Combustibile riscaldamento: Gas naturale
- Giardino privato



















